Das Evangelische Pfarramt A.B. Mattighofen vermietet ab Jänner 2026, befristet auf ein Jahr, eine Wohnung im Pfarrhaus in Mattighofen, Martin-Luther-Straße 2.
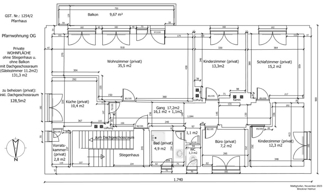
Die Wohnung befindet sich im 1. Stock, mit ca. 131 m2 und besteht aus 5 Wohnräumen, 1 Gästezimmer im Dachgeschoss, Küche mit Abstellraum, Bad, WC, Balkon nach Süden ausgerichtet, 1 überdachten Parkplatz.
Die Mieterin bzw. der Mieter darf den Gemeinschaftsgarten der Pfarre mitbenützen, ist jedoch verpflichtet bei der Instandhaltung mitzuhelfen.
Eine Kaution (Höhe nach Vereinbarung) ist zu hinterlegen.
Es wird aber darauf hingewiesen, dass weiterhin reger Pfarrbetrieb herrscht.
Bei Interesse melden Sie sich bitte ausschließlich per Mail an
Sie werden ehestmöglich kontaktiert und erhalten nähere Auskünfte.
